矿用隔爆摄像仪 KBA127
1 概述
KBA127矿用隔爆型摄像仪采用嵌入式操作系统和高性能硬件处理平台,系统调度效率高,代码固化在Flash中,具有较高稳定性和可靠性。采用先进的视频压缩技术,支持H.264/MJPEG多种编码方式,处理灵活,支持变码率;支持双码流;支持通过客户端软件或IE浏览器实时浏览视频、设置参数、查看网络摄像机状态。
1.1 设备使用环境、工作条件
1.1.1 摄像仪应在以下环境中正常工作:
a) 环境温度:0℃~+40℃;
b) 平均相对湿度:≤95%(25℃);
c) 大气压力:80kPa~106kPa;
d) 煤矿井下有瓦斯,煤尘爆炸危险的环境;
e) 无破坏绝缘的气体或蒸汽的环境中;
f) 无显著振动和冲击的地方;无直接滴水、淋水的场合。
1.1.2 摄像仪能承受的最恶劣的贮运条件为:
a) 高温:+60℃;
b) 低温:-40℃;
c) 平均相对湿度:95%(+25℃);
d) 振动:加速度 20m/s2;
e) 冲击:峰值加速度 300m/s2。
1.2 型号、规格及含义

1.3防爆标志
摄像仪防爆型式为矿用隔爆型,防爆标志为“Ex dbⅠMb”。
1.4开箱检查
开箱时请确认在运输中是否有破损现象,产品的型号、规格、材质是否与您订购的一致。如发现有遗漏或不符合的情况,请速与供应商联系。
1.5 安全警示
a) 请仔细阅读本说明书,并保存好以备参考!
b) 遵循本产品上标示的所有警告和指示!
c) 本产品系精密仪器,严禁尝试自行维修本产品!
d) 注意保护隔爆面,防止各种锐器划伤隔爆面,维修后应拧紧紧固件,保持引入装置里的橡胶密封圈为密封状态!
e) 隔爆外壳内器件维修应在安全场所进行!
f) 严禁带电开盖!
2 结构特征及工作原理
2.1 结构说明
产品主要有摄像仪机芯、交换机模块、电源模块组成。
2.2 工作原理
产品核心功能主要由摄像仪机芯来实现,通过交换机模块实现信号的传输。
3 主要技术指标
3.1 供电电源
a) 额定工作电压:AC 127V;
b) 输入视在功率:≤30VA。
3.2 图像质量:
在环境照度(50~300)Lux 下
a) 水平清晰度:400TVL;
b) 灰度鉴别等级:7 级;
c) 最低照度不大于 0.05Lux(有辅助照明)。
3.3 以太网电口(非安)
a) 接口数量:3 路;
b) 传输方式:TCP/IP 全双工;
c) 传输速率:100Mbps;
d) 信号工作电压峰峰值:≤5V;
e) 最大传输距离:10m(使用 MHYV4×2×1/0.97 通信电缆)。
3.4 以太网光口
a) 接口数量:2 路;
b) 传输方式:TCP/IP 全双工(波长为 1310nm/1550nm 的单模光纤);
c) 传输速率:100Mbps;
d) 光发射功率:-15dBm~0dBm(0.03mW~1mW);
e) 光接收灵敏度:≤-25dBm;
f) 最大传输距离:10km。(使用 MGTSV 型光缆;光纤接点总数 8 个,其中热熔接点 3 个,冷熔接点 3 个,活动连接点 2 个)
3.5 功能
a) 具有在最低照度 0.05Lux 下能看清实物,具有 LED 白光辅助照明功能,当环境照度过低时自动启动,输出图像变为彩色;
b) 具有将采集到的实时图像转换为以太网电信号和以太网光口信号输出的功能。
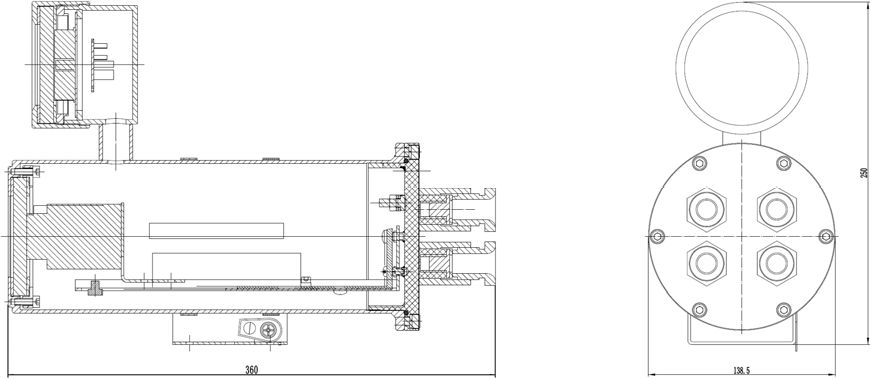
4 外形尺寸和重量
4.1 外形尺寸(长×宽×高):360mm×250mm×138.5mm,见图 1;
4.2 重量:约 7kg。

图 1 外形尺寸图
5 安装方法和使用
5.1 使用前须进行下列各项检查,若不符合要求,不允许使用。摄像仪应有防爆标志和防爆合格证编号。
5.2 电源一定要连接于电源端子上。如果错将电源连接于其他端子,则将损坏摄像仪内其他设备。另外应确认电源电压应在铭牌标明的允许电压范围内,并确认内部设备的供电要求。
5.3 一定要压紧端子和导线,保证连接的高可靠性。
5.4 完成电路连接后,检查以下各项:
a) 所有连接是否都正确无误。
b) 有无漏接线。
c) 各端子和连接线之间是否有短路或对地短路。
5.5 接通电源后,要改变接线,首先应切断电源。电源切断一段时间后进行作业。
6 维护和保养
6.1日常维护和保养
a) 在进行维护检查前,首先切断其供电电源,严禁带电检修。
b) 检修摄像仪拆装时,不要使金属屑落入电路板。
c) 不允许随意改变和更换影响隔爆性能的零部件,紧固螺丝时一定要拧紧,保证防护等级,电缆引入装置密封圈老化变质时,应及时更换密封圈。
6.2 运行维护
通电运行过程中禁止随意移动摄像仪。
6.3 检修周期
检修周期视使用环境不同,建议 6~12 月检修一次。
6.4 长期停放时的维护和保养
如长期停用,请将摄像仪妥善放置,放置产品的仓库应有良好的通风,空气中酸性﹑碱性或其他有害气体应符合环保规定的要求。
7 常见故障及排除
7.1 故障现象:网络摄像机图像模糊是什么问题,该如何改善; 处理方法:用干净的抹布擦前玻璃或镜头。
7.2 故障现象:为什么看到的图像有延迟现象; 处理方法:由于网络速度等的原因造成的。
7.3 故障现象:地址被其他设备占用;
处理方法:断开网络摄像机与网络的连接,单独把网络摄像机和连接起来,按照适当的推荐操作进行地址的重新设置。
7.4 故障现象:地址位于不同的子网内;
处理方法:检查网络摄像机的地址和子网掩码地址以及网关的设置。
7.5 故障现象:摄像机变为黑白图像;
处理方法:进入网络摄像机配置界面,设置图像模式为白天模式或自动。
8 运输、贮存
在避免雨雪直接淋袭的条件下,可适用于水运、陆运及空运等各种运输方式。
包装后的摄像仪能在温度为-10℃~+40℃,相对湿度不大于 90%的环境中贮存 12 个月。
9 质保与售后
摄像仪是在本公司良好的质量管理体制下生产的,但当万一发生故障时,对保修期与售后服务,特作如下说明:
9.1 质保
整机保修期为一年(自产品到货之日起)。但是,由于下述原因引起的故障,即使在保修期内亦作有偿修理。
➢ 由于使用错误,自行改造及不适当的维修等原因。
➢ 购买后跌损或自行搬运过程中发生损坏等原因。
➢ 地震、火灾、风灾、异常电压、其他天灾及二次灾害等原因。
9.2 售后
当使用状态不好时,请首先进行检查。请再次阅读和对照使用说明书进行检查。无法排除故障时,请与销售商或本公司或当地办事处联系。
保修期内的修理:由于本公司产品自身的问题所造成的故障时,应无偿维修。
超过保修期的修理:在修理后能维持功能的场合下,根据客户的要求作有偿修理。
10 产品的具体火焰通路尺寸

11 包装
产品出厂包装使用的专用包装箱,包装箱内包括:


